Čtvercový zátkový šroub zinkové slitiny A-30mm (29,8-1 11/64") d1-M10x18mm 2,5mm
Čtvercový zátkový šroub zinkové slitiny A-30mm (29,8-1 11/64") d1-M10x18mm 2,5mm
- Kliknij i zobacz ten produkt oraz inne rozmiary
Značka
Kód produktu
19.0086.030030M1025
Kód výrobce
2010000449325
Kod grupy towaru
19.0086
Kód produktu
19.0086.030030M1025
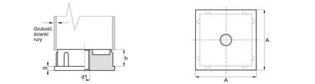
A
30 (29,8-1 11/64”)
d1
M10x18
F max. kg
800
h
17
m
5
Tloušťka stěny
2,5
Stav obalu
oryginalne
Materiál:
- tlakový odlitek ze zinkové slitiny
Standardní barva:
- přírodní (stříbrná)
Automatický překlad s využitím umělé inteligence.
Dotaz na výrobek
Kód produktu:
19.0086.030030M1025
Přidat recenzi




